Beskrivelse
Attraktiv Beige Granitt Kjøkkenvask med Praktisk Avrenningsfelt
Oppdag den perfekte kombinasjonen av stil og funksjonalitet med vår elegante beige Granitt Kjøkkenvask. Denne 1-kummers vasken er designet for å passe inn i ethvert moderne kjøkken, og dens rike farge skjuler effektivt flekker, noe som gjør rengjøringen til en lek. Med et kort avrenningsfelt, er dette produktet ideelt for små kjøkken der plassbesparelse er viktig.
Spesifikasjoner
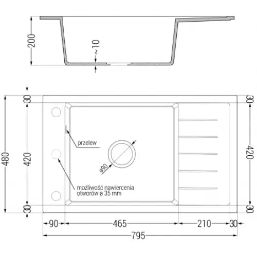
- Størrelse: 795x480x200 mm
- Kumdybde: 190 mm
- Kumstørrelse: 465x420 mm
- Avløpsdiameter: ø90 mm
- Type: 1-kummers vask med kort avrenningsfelt
- Modell: Nedfelt i benkeplate
- Materiale: Granitt
- Farge: Beige
- Overflatebehandling av vannlås: Svart
- Overløpshull: Ja
- Hull for armatur: Ja
- Automatisk vannlås inkludert
- Høy motstand mot riper og misfarging
- Motstandsdyktig mot termisk sjokk
- Overflate som er lett å rengjøre
- Ett ekstra forboret hull for selvstansing ø35
Ofte stilte spørsmål (FAQ)
-
Kan vasken installeres i en standard benkeplate?
Ja, denne vasken er designet for enkel installasjon i de fleste standard benkeplater. -
Hvordan er motstandsdyktigheten mot flekker?
Granittmaterialet har høy motstand mot flekker og misfarging, noe som gjør vasken ideell for daglig bruk. -
Er det inkludert nødvendige tilbehør?
Ja, den kommer med automatisk vannlås og hull for armatur. -
Hvor lett er det å rengjøre vasken?
Overflaten er designet for å være lett å rengjøre, noe som sparer tid i hverdagen. -
Kan jeg bruke denne vasken for varm matlaging?
Ja, den er motstandsdyktig mot termisk sjokk, perfekt for travle hverdager.
Legg vasken i handlekurven i dag og gi kjøkkenet ditt en oppgradering!





