Beskrivelse
Kjøkkenvask i Stål - Produktbeskrivelse
Mexen Solix er en elegant, nedfellbar kjøkkenvask i stål med 1 kum, produsert i høykvalitets rustfritt stål AISI 304. Denne kobberfargede kjøkkenvasken kombinerer moderne design med høy funksjonalitet, og passer perfekt i både klassiske og moderne kjøkken. Den glatte overflaten og den gjennomførte kobberfinishen, inkludert på synlige avløpsdeler, gir et eksklusivt uttrykk på kjøkkenbenken.
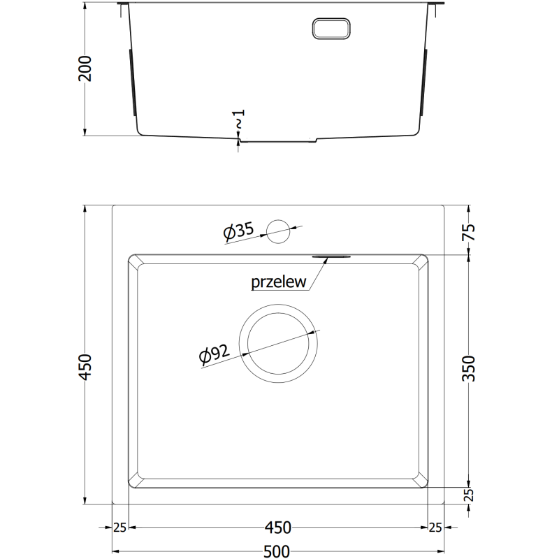
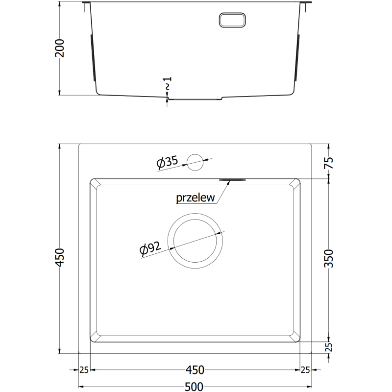
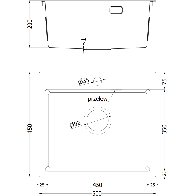
Vasken er en nedfellingsvask i stål beregnet for montering ovenfra i benkeplaten. Med ytre mål på 500 x 450 mm og en romslig kum på 450 x 350 mm får du en praktisk og komfortabel arbeidsflate til daglig oppvask og matlaging. Den rette, minimalistiske formen kombinert med avrundede hjørner gir en kobberfarget kjøkkenvask som både er estetisk og lett å holde ren.
Stål Kjøkkenvask - Nøkkelegenskaper
Denne kjøkkenvasken i stål er laget av rustfritt stål AISI 304, kjent for sin høye motstand mot korrosjon, flekker og mekanisk slitasje. Ståltykkelsen er 3 mm på randen av vasken for ekstra stabilitet ved montering, mens kumvegger og bunn er 1 mm tykke for en god balanse mellom styrke og vekt. De avrundede hjørnene med radius R10 gjør rengjøringen enklere og gir et moderne uttrykk.
Mexen Solix-vasken leveres med integrert hull for kjøkkenarmatur og skjult overløp, slik at du slipper ekstra bearbeiding av benkeplaten. Avløpet med diameter ø92 mm sikrer effektiv vannavrenning, og den manuelle silkurven med kurv og propp gjør det enkelt å samle opp matrester. Fargekoblingen mellom stålvasken i kobber og avløpskomponentene gir et helhetlig og stilrent utseende.
Stålvask - Fordeler i hverdagen
Denne stålvasken er utviklet for intensiv daglig bruk på kjøkkenet. Den er svært motstandsdyktig mot slag, riper og misfarging, og tåler både høy temperatur og termisk sjokk, noe som gjør den ideell ved hyppig bruk av varmt vann, gryter og stekepanner rett fra komfyren. Den glatte overflaten reduserer oppsamling av smuss og gjør det enklere å opprettholde god kjøkkenhygiene.
Integrerte lyddempende matter på undersiden bidrar til å redusere støy når du tapper vann eller legger bestikk og gryter i vasken. Som en kompakt kjøkkenvask 500 x 450 med én romslig kum får du en kjøkkenvask med 1 kum som utnytter plassen effektivt, samtidig som den gir tilstrekkelig volum til både oppvask og skylling av større kjøkkenredskaper.
Tekniske spesifikasjoner
- Merke: Mexen
- Modell: Solix
- SKU: 6402501000-65
- Produkttype: Nedfellingsvask i stål (montering ovenfra i benkeplate)
- Antall kummer: 1 kum
- Ytre mål på vask: 500 x 450 x 200 mm
- Innvendige mål på kum: 450 x 350 mm
- Dybde på kum: 200 mm
- Materiale: Rustfritt stål AISI 304
- Tykkelse på stål – rand: 3 mm
- Tykkelse på stål – kum: 1 mm
- Hjørner i kum: avrundede hjørner, radius R10
- Overløp: skjult overløp (integrert i kummen)
- Hull for armatur: ja, ferdig utskåret hull for kjøkkenbatteri
- Avløp: diameter ø92 mm
- Overflate: glatt, lett å rengjøre
- Farge/finish: kobber (inkludert synlige avløps- og sifondeler)
- Motstand: høy motstand mot slag, riper og misfarging
- Temperaturbestandighet: motstandsdyktig mot høy temperatur og termisk sjokk
- Lydisolering: utstyrt med lyddempende matter
Leveringsomfang
- Mexen Solix kjøkkenvask i rustfritt stål AISI 304, kobberfarget, 1 kum
- Manuelt avløpssett/sifon i kobberfinish
- Silkurv med kurv for avfall og propp
- Ekstra dekor-/maskeringsdeksel for avløp (for å skjule avløpsåpningen på en estetisk måte)
- Integrert, skjult overløpsløsning med nødvendige komponenter
- Lyddempende matter montert på vasken





