Beskrivelse
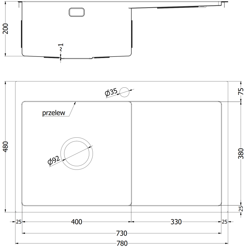
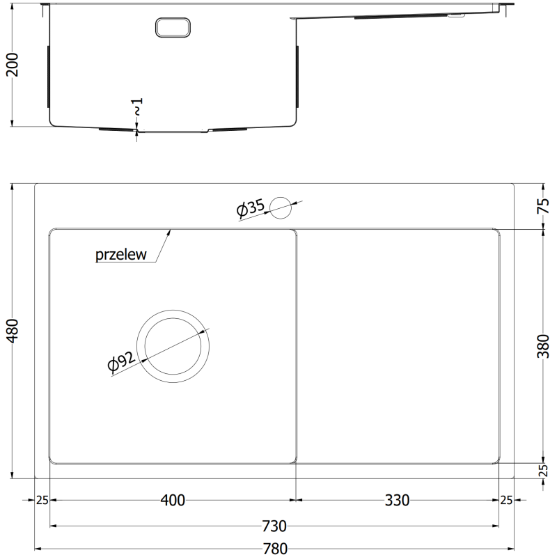
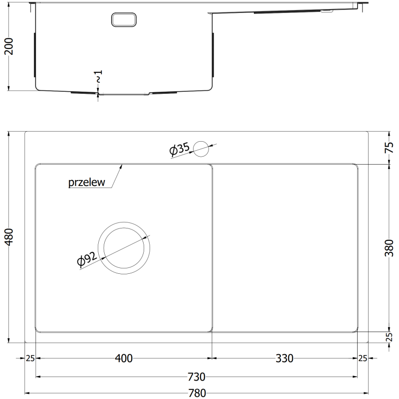
Mexen Exar – Kjøkkenvask i Svart Stål 78x48 cm (Høyre)
Gi kjøkkenet ditt et moderne og eksklusivt uttrykk med Mexen Exar. Dette er ikke bare en vanlig stålvask – den unike bikube-strukturen (honeycomb) kombinerer elegant design med ekstrem slitestyrke. Perfekt for deg som ønsker en svart vask som holder seg pen, selv ved daglig, krevende bruk.
Modellen har kummen plassert på høyre side og en romslig avrenningsplate til venstre, noe som sikrer en ergonomisk arbeidsflyt.
Hvorfor velge Mexen Exar?
-
🛡️ Innovativ Bikube-struktur: Den spesielle overflatestrukturen gjør vasken langt mer motstandsdyktig mot riper enn glatte flater. Vannperler renner raskere av, noe som minsker kalkflekker og gjør rengjøringen til en lek.
-
🔇 Stillegående (Anti-støy): Glem den irriterende "tromme-lyden" når vannet treffer bunnen. Vasken er utstyrt med tykke, lyddempende matter på undersiden som absorberer støy.
-
🔥 Tåler termisk sjokk: Laget av høykvalitets rustfritt stål (AISI 304). Du kan trygt sette varme gryter og panner rett i kummen uten å bekymre deg for misfarging eller skader.
-
✨ Hygienisk og holdbar: Det rustfrie stålet er motstandsdyktig mot flekker og tar ikke til seg lukt. En solid rand på 3 mm sikrer stabilitet etter montering i benkeplaten.
Tekniske Spesifikasjoner
-
Merke: Mexen
-
Modell: Exar
-
Montering: Nedfelt (innfelt i benkeplate)
-
Versjon: Høyre (kum til høyre, avrenning til venstre)
-
Farge: Svart (med bikube-mønster)
-
Materiale: Rustfritt stål AISI 304
-
Utvendige mål: 780 x 480 x 200 mm
-
Mål på kum: 400 x 380 mm
-
Dybde: 200 mm (god plass til store kjeler)
-
Avløpshull: ø92 mm (standard)
Dette følger med i pakken
Vasken leveres komplett og klar til montering. Du trenger ikke kjøpe ekstra deler.
-
Mexen Exar kjøkkenvask (Svart)
-
Komplett sifon (vannlås) og avløpssett
-
Kurvventil (som samler opp matrester)
-
Sort maskeringsdeksel til avløpet (for et rent utseende)
-
Ferdigmonterte lyddempende matter
Lignende produkter


Kjøkkenvask i stål 780 x 480 mm, svart, 1 kum, høyre avrenner Mexen – 6434781010p-70hc


Kjøkkenvask i stål 750 x 440 mm, 1 kum, inox, Mexen Trixo – 6415751000-01


Kjøkkenvask i stål 650 x 450 mm, gull, 1 kum, Mexen Solix – 6403651000-55


Kjøkkenvask i stål 610 x 510 mm, kobber, 1,5 kum Mexen Flexo – 6446611500-65


Kjøkkenvask i stål 600 x 500 mm, kobber, 1 kum, Mexen Solix – 6408601000-65


Kjøkkenvask i stål 500 x 500 mm, gull, 1 kum Mexen Solix – 6407501000-55hc


Kjøkkenvask i stål 500 x 450 mm, svart, 1 kum, Mexen Solix – 6402501000-70


Kjøkkenvask i stål 440 x 440 mm, gull, 1 kum, Mexen Trixo – 6413441000-55hc


Kjøkkenvask i stål 400 x 500 mm, gull, 1 kum, Mexen Solix – 6406401000-55


Kjøkkenvask i stål 400 x 500 mm, gull, 1 kum Mexen Solix – 6406401000-55hc


Kjøkkenvask i stål 370 x 440 mm, svart, 1 kum, Mexen Trixo – 6412371000-70


Kjøkkenvask i stål 370 x 440 mm, gull, 1 kum, Mexen Trixo – 6412371000-55hc


Kjøkkenvask i stål 800 x 450 mm, svart, 2 kummer, Mexen Binox – 6421802000-70


Kjøkkenvask i stål 800 x 450 mm, svart, 2 kummer Mexen Binox – 6421802000-70hc


Kjøkkenvask i stål 800 x 450 mm, kobber, 2 kummer, Mexen Binox – 6421802000-65


Kjøkkenvask i stål 800 x 450 mm, kobber, 2 kummer Mexen Binox – 6421802000-65hc


Kjøkkenvask i stål 800 x 450 mm, inox, 2 kummer, Mexen Binox – 6421802000-01hc


Kjøkkenvask i stål 800 x 450 mm, gull, 2 kummer Mexen Binox – 6421802000-55hc


Kjøkkenvask i stål 800 x 450 mm, gull, 2 kummer Mexen Binox – 6421802000-55


Kjøkkenvask i stål 800 x 450 mm, 2 kummer, inox, Mexen Binox – 6421802000-01


Kjøkkenvask i stål 780 x 480 mm, svart, 1 kum, venstre avrenner Mexen – 6433781010l-70hc


Kjøkkenvask i stål 780 x 480 mm, svart, 1 kum, venstre avrenner Mexen – 6433781010l-70


Kjøkkenvask i stål 780 x 480 mm, svart, 1 kum, høyre avrenner Mexen – 6434781010p-70


Kjøkkenvask i stål 780 x 480 mm, kobber, 1 kum, venstre, Mexen Exar – 6433781010l-65hc


Kjøkkenvask i stål 780 x 480 mm, kobber, 1 kum, venstre, Mexen Exar – 6433781010l-65


Kjøkkenvask i stål 780 x 480 mm, kobber, 1 kum, høyre avrenner Mexen – 6434781010p-65hc


Kjøkkenvask i stål 780 x 480 mm, kobber, 1 kum høyre avrenner Mexen – 6434781010p-65


Kjøkkenvask i stål 780 x 480 mm, inox, 1 kum, høyre avrenner Mexen – 6434781010p-01


Kjøkkenvask i stål 780 x 480 mm, inox, 1 kum, venstre, Mexen Exar – 6433781010l-01


Kjøkkenvask i stål 780 x 480 mm, gull, 1 kum, venstre avrenner Mexen – 6433781010l-55


Kjøkkenvask i stål 780 x 480 mm, gull, 1 kum, venstre avrenner Mexen – 6433781010l-55hc


Kjøkkenvask i stål 780 x 480 mm, gull, 1 kum, høyre avrenner Mexen – 6434781010p-55hc


Kjøkkenvask i stål 780 x 480 mm, gull, 1 kum, høyre avrenner Mexen – 6434781010p-55


Kjøkkenvask i stål 780 x 480 mm, 1 kum venstre avrenner Mexen Exar – 6433781010l-01hc


Kjøkkenvask i stål 780 x 480 mm, 1 kum med avrenner, Mexen Exar – 6434781010p-01hc


Kjøkkenvask i stål 780 x 450 mm, svart, 2 kummer, Mexen Xorin – 6441782000-70


Kjøkkenvask i stål 780 x 450 mm, svart, 2 kummer Mexen Xorin – 6441782000-70hc


Kjøkkenvask i stål 780 x 450 mm, kobber, 2 kummer Mexen Xorin – 6441782000-65hc


Kjøkkenvask i stål 780 x 450 mm, kobber, 2 kummer Mexen Xorin – 6441782000-65


Kjøkkenvask i stål 780 x 450 mm, gull, 2 kummer, Mexen Xorin – 6441782000-55


Kjøkkenvask i stål 780 x 450 mm, gull, 2 kummer Mexen Xorin – 6441782000-55hc


Kjøkkenvask i stål 780 x 450 mm, 2 kummer, inox, Mexen Xorin – 6441782000-01


Kjøkkenvask i stål 780 x 450 mm, 2 kummer, inox Mexen Xorin – 6441782000-01hc


Kjøkkenvask i stål 750 x 440 mm, svart, 1 kum, Mexen Trixo – 6415751000-70


Kjøkkenvask i stål 750 x 440 mm, svart 1 kum Mexen Trixo – 6415751000-70hc


Kjøkkenvask i stål 750 x 440 mm, kobber, 1 kum, Mexen Trixo – 6415751000-65hc


Kjøkkenvask i stål 750 x 440 mm, kobber, 1 kum, Mexen Trixo – 6415751000-65


Kjøkkenvask i stål 750 x 440 mm, gull, 1 kum, Mexen Trixo – 6415751000-55hc


Kjøkkenvask i stål 750 x 440 mm, gull, 1 kum, Mexen Trixo – 6415751000-55





