Beskrivelse
Kjøkkenvask i Stål - Produktbeskrivelse
Mexen Exar 1-kums kjøkkenvask i stål med kort avrenner, venstre utførelse (modell HC – 6431621005L-70HC), er en moderne og funksjonell løsning for enhver kjøkkeninnredning. Denne svarte kjøkkenvasken i stål kombinerer et stilrent, matt uttrykk med praktiske detaljer som gjør daglig bruk enkel og komfortabel.
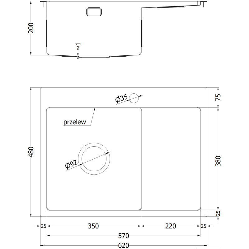
Vasken er produsert i høykvalitets rustfritt stål AISI 304, noe som gir høy motstandsdyktighet mot skader, korrosjon og misfarging. Med sitt kompakte format 620 x 480 x 200 mm er dette en kjøkkenvask i stål 620 x 480 som passer godt både i mindre og mellomstore kjøkken, samtidig som den gir god plass i kummen og en funksjonell, kort avrenner på venstre side.
Stål Kjøkkenvask - Nøkkelegenskaper
Denne stålvasken er en enkeltkums kjøkkenvask i stål med kort avrenner, utformet som en innfelt modell for montering ned i benkeplaten. Den venstreorienterte løsningen (kjøkkenvask med avrenner venstre) gir en praktisk arbeidsflate ved siden av kummen, ideell for skylling og tørking av servise eller grønnsaker.
Overflaten har en struktur i «bikube»-mønster, som ikke bare gir et moderne og eksklusivt utseende, men også bidrar til enklere rengjøring og bedre motstand mot riper. Den svarte stålvasken med 1 kum er utstyrt med integrert hull til kjøkkenbatteri, skjult overløp og en stor avløpsåpning på ø 92 mm, tilpasset moderne avløps- og avfallsløsninger.
Stålvask - Fordeler i hverdagen
Denne stålvasken er utviklet for å tåle krevende daglig bruk på kjøkkenet. Rustfritt stål AISI 304 gir høy motstand mot slag, riper og misfarging, samtidig som materialet tåler høy temperatur og termisk sjokk, for eksempel ved veksling mellom kokende vann og kald skylling.
Den spesielle bikube-strukturen på overflaten gjør det enklere å holde vasken ren, siden vann og smuss lettere renner av. Lydisolerende matter under kummen reduserer støy fra rennende vann og oppvask, noe som gir en mer behagelig arbeidsopplevelse. Kombinasjonen av skjult overløp, fargematchet avløpsdeksel og svart utførelse på sifon og tilbehør gir en helhetlig, estetisk løsning som passer inn i moderne kjøkkendesign.
Tekniske spesifikasjoner
- Produktnavn: Mexen Exar 1-kums kjøkkenvask med kort avrenner
- Produsent: Mexen
- Modellbetegnelse: Exar (modell HC)
- SKU: 6431621005L-70HC
- Type vask: 1-kums kjøkkenvask med kort avrenner
- Orientering / oppsett: venstre (avrenner på venstre side i henhold til produsentens angivelse)
- Monteringstype: nedfelling / innfelt i benkeplate
- Materiale: rustfritt stål AISI 304
- Farge: svart
- Overflate: struktur «bikube»
- Utvendige mål (total størrelse): 620 x 480 x 200 mm
- Utvendig lengde: 620 mm
- Utvendig bredde: 480 mm
- Høyde / total dybde: 200 mm
- Innvendige mål kum: 380 x 350 mm
- Dybde kum: 200 mm
- Tykkelse stål, kant / rand: 3 mm
- Tykkelse stål, kum: 1 mm
- Hjørneradius i kum: R10
- Diameter avløp: ø 92 mm
- Overløp: ja, skjult overløp
- Type overløp: integrert, skjult åpning
- Hull til kjøkkenbatteri: ja, integrert i vasken
- Støyreduksjon: lydisolerende matter under vasken
- Motstand mot mekanisk påvirkning: høy motstand mot slag og riper
- Motstand mot misfarging: høy motstand mot flekker og misfarging
- Varmebestandighet: motstandsdyktig mot høy temperatur
- Termisk sjokk: motstandsdyktig mot termisk sjokk
Leveringsomfang
- Mexen Exar svart kjøkkenvask i stål, 1 kum med kort avrenner, venstre orientering
- Manuelt betjent sifon (avløpssett) inkludert
- Avløpssil / kurv for oppsamling av matrester
- Avløpspropp / kork til å stenge avløpet
- Ekstra dekor-/maskeringsdeksel til avløp, fargematchet i svart
- Komplette overløpsdeler til skjult overløp
- Sifon og synlige avløpsdeler i svart utførelse
- Lydisolerende matter for montering under vasken
- Monterings- og festeelementer som kreves for innfelling i benkeplate (i henhold til produsentens standardleveranse)





